RESERVIERT: 4 Zimmer ETW mit Garten & Pool in Steinen-Weitenau
Diese 4-Zimmer-Eigentumswohnung bietet großzügigen Wohnkomfort mit einem großen Garten, Pool und einem beheizten Wintergarten.
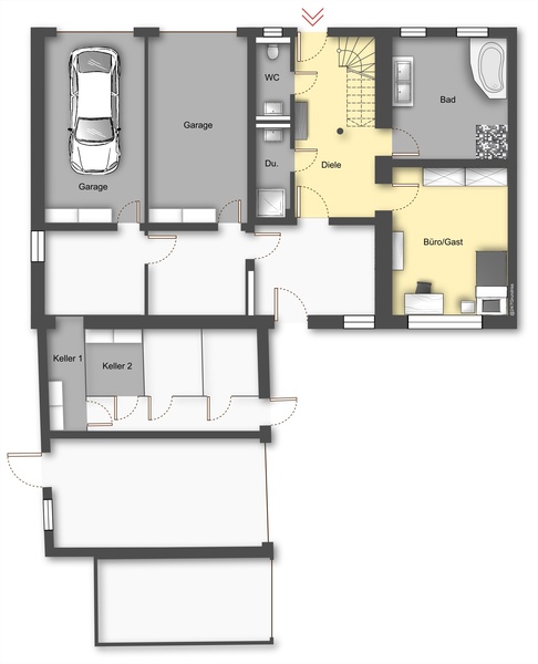
Diese großzügige Eigentumswohnung im Erd- und Obergeschoss eines 4-Parteien-Mehrfamilienhauses aus dem Jahr 1998 erstreckt sich über zwei Ebenen und besticht durch offene, lichtdurchflutete Räume sowie hochwertige Ausstattung. Mit insgesamt 4 Zimmern, einem Wintergarten und einer gut durchdachten Raumaufteilung bietet die Immobilie ideale Bedingungen für Familien oder auch Mehrgenerationen-Wohnen. Rechtlich handelt es sich um eine Eigentumswohnung, die durch ihre Bauweise und den separaten Zugang jedoch das Wohngefühl einer Doppelhaushälfte vermittelt.
Hinweis zur Erweiterung
Im selben Gebäude steht zusätzlich eine gemütliche 1,5-Zimmer-Studiowohnung über zwei Etagen zum Verkauf. Diese Einheit ist sofort verfügbar und eignet sich hervorragend als Ergänzung zur großen Familienwohnung beispielsweise für erwachsene Kinder, Gäste oder als separates Homeoffice.
Diese großzügige Eigentumswohnung im Erd- und Obergeschoss eines 4-Parteien-Mehrfamilienhauses aus dem Jahr 1998 erstreckt sich über zwei Ebenen und besticht durch offene, lichtdurchflutete Räume sowie hochwertige Ausstattung. Mit insgesamt 4 Zimmern, einem Wintergarten und einer gut durchdachten Raumaufteilung bietet die Immobilie ideale Bedingungen für Familien oder auch Mehrgenerationen-Wohnen. Rechtlich handelt es sich um eine Eigentumswohnung, die durch ihre Bauweise und den separaten Zugang jedoch das Wohngefühl einer Doppelhaushälfte vermittelt.
Hinweis zur Erweiterung
Im selben Gebäude steht zusätzlich eine gemütliche 1,5-Zimmer-Studiowohnung über zwei Etagen zum Verkauf. Diese Einheit ist sofort verfügbar und eignet sich hervorragend als Ergänzung zur großen Familienwohnung beispielsweise für erwachsene Kinder, Gäste oder als separates Homeoffice.
| Kaufpreis | 515.000,00 EUR |
| Provision | 2,38 % Käuferprovision inkl. MwSt. |
Informationen
Objekt Informationen
| Nr. | 24WB2 |
|---|---|
| Typ | Wohnung |
| Wohnfläche | 164 qm |
| Nutzfläche | 47 qm |
| Anzahl Zimmer | 4 |
| Anzahl Badezimmer | 2 |
| Anzahl Schlafzimmer | 3 |
| Anzahl Etagen | 2 |
| Anzahl Stellplätze | 3 |
| Separates WC | ja |
| Gartennutzung | ja |
| Terrasse | ja |
| Befeuerung | Gas, Holz / Stückholz |
| Energieeffizienz | Verbrauchsausweis 84 kWh/(m2*a) = C Bitte informieren Sie sich zu Sanierungspflichten nach dem Gebäude Energiegesetz (GEG). |
