In Vorbereitung: Urban Living in Lörrach – Moderne und hochwertige Stadtwohnung
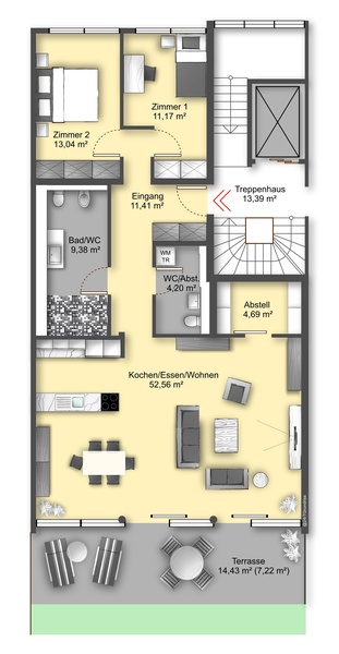
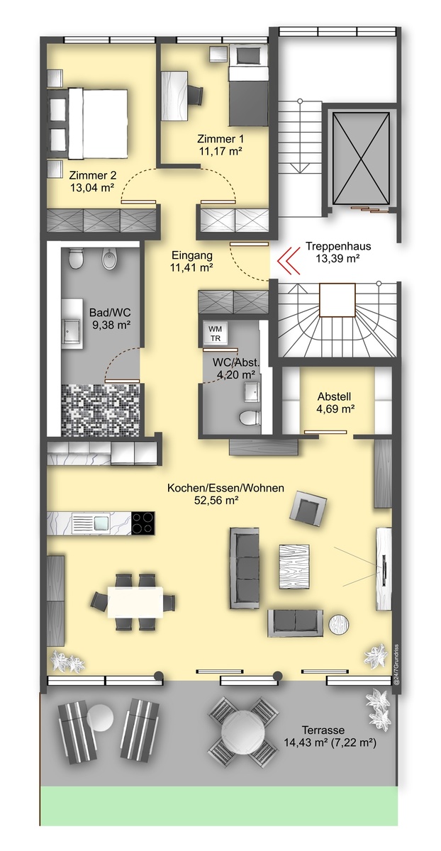
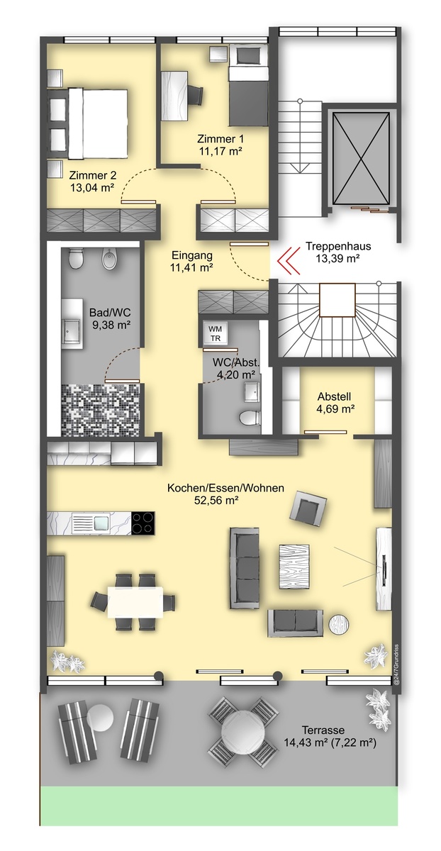
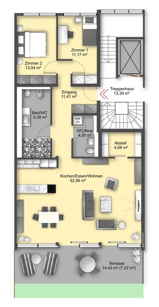
In zentraler, dennoch ruhiger Lage von Lörrach erwartet Sie im Hochparterre einer modernen Wohnanlage (KfW 40 A+) diese stilvolle 3,5-Zimmer-Eigentumswohnung mit ca. 116 m² Wohnfläche. Die Immobilie überzeugt durch ihre energieeffiziente Bauweise mit Holzpelletheizung, kontrollierter Wohnraumlüftung mit Wärmerückgewinnung sowie einem durchdachten Raumkonzept.
Der großzügige Wohn- und Essbereich mit großen Fensterfronten öffnet sich zur geschützten Terrasse im begrünten Innenhof – ideal zum Entspannen. Die hochwertige Einbauküche mit Glasfronten und Kochinsel ist bereits im Kaufpreis enthalten. Ein modernes Bad, ein separates Gäste-WC, zwei vielseitig nutzbare Zimmer und ein praktischer Abstellraum ergänzen das Angebot.
Ausstattung & Highlights:
Aufzug
Energieeffiziente Bauweise (KfW 40 A+)
Fenster mit Schallschutzklasse 4
Alle Zimmer sind mit einem SAT-Anschluss ausgestattet
Tiefgaragenstellplatz (Wallbox kann installieren werden)
Fahrradstellplätze im Hof und in der sanierten Scheune
Großzügige Nutzflächen für Eigentümer
Hochwertige Einbauküche mit Kochinsel und Glasfront
große Terrasse mit elektrischer Markise mit Ausrichtung zum Innenhof
Zentrale Lage mit sehr guter Anbindung in die Lörracher Innenstadt, wenige Gehminuten zum Lörracher Hauptbahnhof (max. 10 min.)
Diese Wohnung vereint urbanes Wohnen mit nachhaltigem Komfort – ideal für Paare, Familien oder Berufstätige mit Anspruch.
Die Immobilie ist mit einer modernen, kontrollierten Wohnraumlüftungsanlage mit Wärmerückgewinnung ausgestattet. Dieses System gewährleistet einen kontinuierlichen Luftaustausch, führt verbrauchte Luft zuverlässig ab und versorgt alle Wohnbereiche mit gefilterter Frischluft.
Durch die integrierte Wärmerückgewinnung wird ein Großteil der Abluftwärme auf die einströmende Frischluft übertragen. Dies reduziert den Heizwärmebedarf spürbar und trägt zu einem energieeffizienten, nachhaltigen Gebäudebetrieb bei.
Neben einer verbesserten Raumluftqualität sorgt die Anlage für einen wirksamen Schutz vor Feuchtigkeit und damit verbundenen Bauschäden. Das System arbeitet leise und nahezu wartungsarm und ist damit ein wesentlicher Komfort- und Qualitätsfaktor dieser Immobilie.
Der großzügige Wohn- und Essbereich mit großen Fensterfronten öffnet sich zur geschützten Terrasse im begrünten Innenhof – ideal zum Entspannen. Die hochwertige Einbauküche mit Glasfronten und Kochinsel ist bereits im Kaufpreis enthalten. Ein modernes Bad, ein separates Gäste-WC, zwei vielseitig nutzbare Zimmer und ein praktischer Abstellraum ergänzen das Angebot.
Ausstattung & Highlights:
Aufzug
Energieeffiziente Bauweise (KfW 40 A+)
Fenster mit Schallschutzklasse 4
Alle Zimmer sind mit einem SAT-Anschluss ausgestattet
Tiefgaragenstellplatz (Wallbox kann installieren werden)
Fahrradstellplätze im Hof und in der sanierten Scheune
Großzügige Nutzflächen für Eigentümer
Hochwertige Einbauküche mit Kochinsel und Glasfront
große Terrasse mit elektrischer Markise mit Ausrichtung zum Innenhof
Zentrale Lage mit sehr guter Anbindung in die Lörracher Innenstadt, wenige Gehminuten zum Lörracher Hauptbahnhof (max. 10 min.)
Diese Wohnung vereint urbanes Wohnen mit nachhaltigem Komfort – ideal für Paare, Familien oder Berufstätige mit Anspruch.
Die Immobilie ist mit einer modernen, kontrollierten Wohnraumlüftungsanlage mit Wärmerückgewinnung ausgestattet. Dieses System gewährleistet einen kontinuierlichen Luftaustausch, führt verbrauchte Luft zuverlässig ab und versorgt alle Wohnbereiche mit gefilterter Frischluft.
Durch die integrierte Wärmerückgewinnung wird ein Großteil der Abluftwärme auf die einströmende Frischluft übertragen. Dies reduziert den Heizwärmebedarf spürbar und trägt zu einem energieeffizienten, nachhaltigen Gebäudebetrieb bei.
Neben einer verbesserten Raumluftqualität sorgt die Anlage für einen wirksamen Schutz vor Feuchtigkeit und damit verbundenen Bauschäden. Das System arbeitet leise und nahezu wartungsarm und ist damit ein wesentlicher Komfort- und Qualitätsfaktor dieser Immobilie.
| Provision | 1,19 % Käuferprovision inkl. MwSt., verdient und fällig mit Beurkundung des notariellen Kaufvertrages. Der Immobilienmakler hat einen provisionspflichtigen Maklervertrag mit dem Verkäufer in gleicher Höhe abgeschlossen. |
Objekt Informationen
| Nr. | 25LS |
|---|---|
| Typ | Wohnung |
| Baujahr | 2018 |
| Wohnfläche | 120 qm |
| Stockwerk | Hochparterre |
| Anzahl Zimmer | 3 |
| Anzahl Badezimmer | 1 |
| Anzahl Schlafzimmer | 2 |
| Anzahl Stellplätze | 1 |
| Separates WC | ja |
| Terrasse | ja |
| Befeuerung | Pelletheizung |
| Energieeffizienz | Energiebedarf 25 kWh/(m²*a) entspricht A+ |
